德国工业4.0智造

  • 健康环保
  • 免费服务
  • 三年质保
  • 本地体验
首页 > 案例中心 > 美式 > 美式-优雅灰调

美式-优雅灰调 3615

450㎡#别墅#美式

案例介绍
重庆市 重庆南山庆隆高尔夫钻石岛


                       

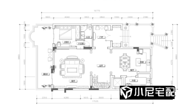
户型图

门厅,简约大气、线条洗练。
客厅,淡色系墙面、天花板、沙发与深色系的家具、挂画相得益彰,赋予空间平衡之美
餐厅
宴会厅把零碎的空间整合,没有多余的颜色堆砌和摆设,使用统一的暖灰色调,去掉繁复设计的家具,但整个空间看起来,却又简而不凡
次卧
主卧,布置较为温馨,作为主人的私密空间,主要以功能性和实用舒适为考虑的重点,卧室没有设顶灯,使用暖色调的木地板来装点,同时软装在用色上非常统一
卫生间,在设计的时候,主要是主人使用,在隔断上没有使用封闭式的,但整个卫生间在同时使用的时候也不会相互打扰。在材质上也以暖灰色调为主,看起来干净、整洁。
书房,在二楼转角处,既作为二楼女儿房的起居室,也可以作为家庭交流聚会的一个场所
重庆市-渝中区
设计经验10 作品1
  • 现代
  • 欧式
  • 简约
  • 硬装设计
  • 软装配饰设计
  • 产品陪购
  • 施工监督

免费申请设计

设计师上门服务全程免费,禁止以任何形式收取费用。

请输入验证码

验证码输入错误