德国工业4.0智造

  • 健康环保
  • 免费服务
  • 三年质保
  • 本地体验
首页 > 案例中心 > 现代 > 休闲时光

休闲时光 2790

128㎡#三室一厅两卫#现代

案例介绍
河北省 - 保定市 - 唐县 唐尧新城

简单美丽,舒适而不繁琐,经济实惠。

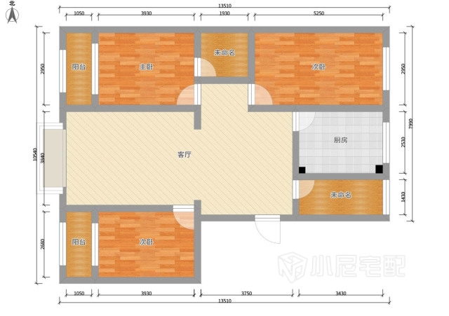
户型图

客厅
餐厅
主卧
次卧
次卧书桌
次卧
次卧
厨房
河北省-保定市
设计经验1 作品4
  • 现代
  • 简约
  • 产品陪购

免费申请设计

设计师上门服务全程免费,禁止以任何形式收取费用。

请输入验证码

验证码输入错误