德国工业4.0智造

  • 健康环保
  • 免费服务
  • 三年质保
  • 本地体验
首页 > 案例中心 > 简约 > 华泰

华泰 2623

110㎡#三室两厅一卫#简约

案例介绍
河北省 - 廊坊市 - 三河市 华泰


                       

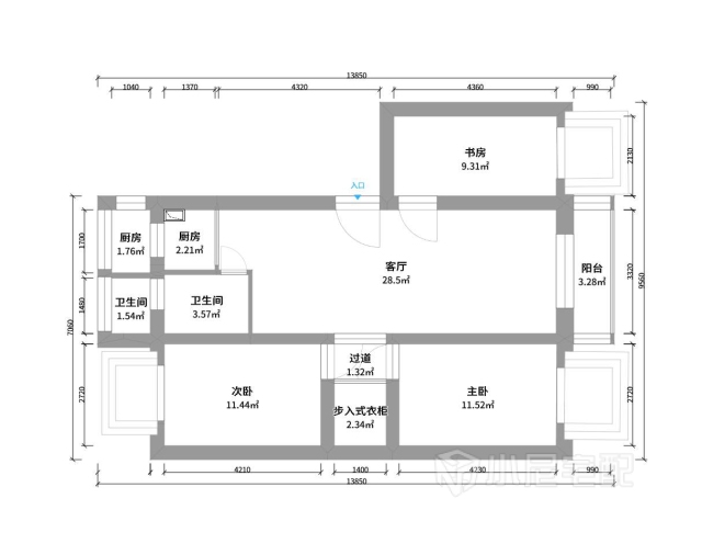
户型图

进门正对衣帽间隐形门,隐形门采用装饰画装饰,艺术感很强
客厅简单白色调为主,干净自然
餐厅一样为白色调为主,与客厅相呼应
卫生间采用暖色墙砖,显得温暖
厨房空间小,显得狭小,充分利用阳台空间
书房设置双人位,休闲娱乐一体
主卧室全屋定制榻榻米,选用暖色调为主
次卧室全屋定制榻榻米,选用暖色调为主
1898
河北省-廊坊市
设计经验6 作品7
  • 现代
  • 美式
  • 欧式
  • 硬装设计
  • 软装配饰设计

免费申请设计

设计师上门服务全程免费,禁止以任何形式收取费用。

请输入验证码

验证码输入错误