案例介绍
                             
                               河北省 - 廊坊市 - 三河市
                                                              嘉都
                                                            
                           
                           
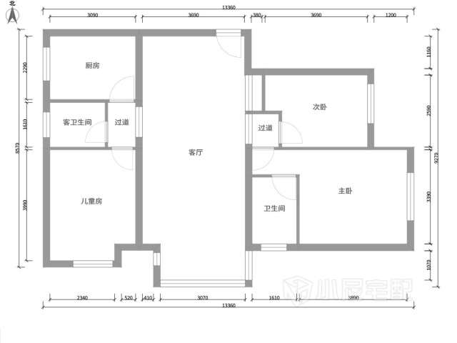
                       户型图
                                   
                               
 
                                                                     灰色地板电视墙与浅灰色木地板相呼应,原木色沙发配合米色墙纸给人一种居家舒适感
 
                                                                     蓝色吊灯与原木餐桌遥相呼应,配合深灰蓝酒柜营造出一种清爽风
 
                                                                     原木五斗柜配合隔板装饰,一切显得那么贴近大自然
 
                                                                     一张休闲沙发配合一张圆形休闲桌尽享午后休闲时光
 
                                                                     新白橡柜体配合富士白衣柜门,高矮错落有致,一抹深灰蓝让人眼前一亮
 
                                                                     新白橡柜体配合富士白衣柜门,高矮错落有致,一抹深灰蓝让人眼前一亮
 
                                                                     浅蓝色壁纸清新自然配合柠檬黄给孩子一个舒适多彩的居住学习空间
 
                                                                     浅蓝色壁纸清新自然配合柠檬黄给孩子一个舒适多彩的居住学习空间
 
                                                                     原木色橱柜一切尽显北欧及简风
 
                                                                     原木色橱柜一切尽显北欧及简风
 
                                                                     主卫生间原木色手盆及米色墙砖与主题北欧风格相协调
 
                                                                     主卫生间原木色手盆及米色墙砖与主题北欧风格相协调
 
                                                                     卫生间原木色手盆及白色墙砖与主题北欧风格相协调
 
                                                                     卫生间原木色手盆及白色墙砖与主题北欧风格相协调
免费申请设计
设计师上门服务全程免费,禁止以任何形式收取费用。
 
                         
                         
                         
                         
                         
                             
                                   