德国工业4.0智造

  • 健康环保
  • 免费服务
  • 三年质保
  • 本地体验
首页 > 案例中心 > 现代 > 温馨之家

温馨之家 5388

112㎡#三室一厅一卫#现代

案例介绍
河北省 - 唐山市 - 路北区 恒泰悦季

一家三口的温馨之家

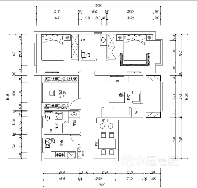
户型图

玄关采用了隔断来划分空间,既能合理充分利用空间,又能更好的区别客餐厅、并且不影响采光
客厅的沙发是男主人的最爱,在此基础上搭配木饰面板和文化石作为背景墙,整体简约又不乏时尚。
简单的装饰画配上黑白色的桌椅,整体简单却又不失单调
主卧则满足了女主人的喜好,偏北欧的极简风格。装饰的照片为两个人的婚纱照、流漏出一丝丝的温馨情感。
主卧的卫生间改成衣帽间,没有衣帽间的房子都与每一位女性都是不完美的
次卧是女儿的房间,粉色的床品与淡绿色的背景墙相交辉映,再点缀绿色的装饰画,整体小清新的风格
书房暂定为休息区,平常女儿可以用来写作业学习,男主人也可以用来办公
厨房整体黑白灰色调,更大的遵循了女主人的喜好,毕竟是她的天下
1418
河北省-唐山市
设计经验3 作品4
  • 现代
  • 软装配饰设计

免费申请设计

设计师上门服务全程免费,禁止以任何形式收取费用。

请输入验证码

验证码输入错误