德国工业4.0智造

  • 健康环保
  • 免费服务
  • 三年质保
  • 本地体验
首页 > 案例中心 > 现代 > 1+1公寓

1+1公寓 6616

88㎡#复式#现代

案例介绍
1+1

小面积的复式结构,简洁大方的现代风格,客厅的结构布置,以及冰箱的位置,合理运用空间在小面的户型里面是最重要的。次卧室的榻榻米,避免了在横梁下居住的问题。在这个居室里,由于层高问题,还是以前的暖气片为主,不能更改地暖。

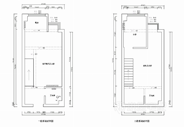
户型图


                               

                               

                               

                               

                               

                               

                               
山西省-长治市
设计经验6 作品1
  • 现代
  • 中式
  • 欧式
  • 硬装设计
  • 软装配饰设计
  • 产品陪购
  • 施工监督

免费申请设计

设计师上门服务全程免费,禁止以任何形式收取费用。

请输入验证码

验证码输入错误