德国工业4.0智造

  • 健康环保
  • 免费服务
  • 三年质保
  • 本地体验
首页 > 案例中心 > 欧式 > 高层住宅

高层住宅 7579

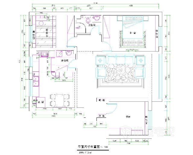
91.36㎡#三室两厅两卫#欧式

案例介绍
内蒙古自治区 - 赤峰市 - 林西县 尚品天成

欧式风格线角变化丰富,家具及灯饰都略显欧式特色并有一定的文化氛围。整体衣柜橱柜定制,使用空间大大提升,整体协调美观。

户型图

入户玄关设计两组鞋柜不同功能要求满足主人的使用需求
客厅电视背景墙采用硅藻泥设计结合雕花玻璃的拼框设计,使用空间与美感相结合
客厅吊顶以圆形为基准,采用欧式线条显示其美感
客厅沙发背景墙用颜色乳胶漆与照片墙结合而成
过道走廊明亮节俭,走廊尽头以图案马赛克收尾,彰显主人的审美感
餐厅吊顶采用圆弧设计,整体效果美观大气
主卧室衣柜整体定制,使得整体空间协调统一
儿童房使用榻榻米设计,使用空间与功能需求都得到了满足
卫生间采用两色拼接铝扣板设计,梳洗台整体设计,连同洗衣机装于台下,使用空间大大提升
卫生间淋浴房的设计美感使用合理,后期卫生打理方便
书房整体定制,整体性强,学习氛围强烈
厨房整体定制,独特的弧形摆台设计结合酒柜设计让使用空间大大提升
厨房设计的台面根据厨房的大小,使用不同进深的橱柜尺寸满足主人的操作需求
内蒙古自治区-赤峰市
设计经验2 作品3
  • 现代
  • 中式
  • 欧式
  • 简约
  • 混搭
  • 硬装设计
  • 软装配饰设计

免费申请设计

设计师上门服务全程免费,禁止以任何形式收取费用。

请输入验证码

验证码输入错误