德国工业4.0智造

  • 健康环保
  • 免费服务
  • 三年质保
  • 本地体验
首页 > 案例中心 > 欧式 > 唐人中心

唐人中心 5123

87㎡#两室两厅一卫#欧式

案例介绍
山东省 - 德州市 - 德城区 唐人中心

业主没有太多时间装修,曾经视装修为一件不可能完成的任务。可是因为想要拥有梦想的家,家里全都是喜欢的颜色,喜欢的花朵,喜欢的玩偶,是个可以完全包容,释放自己的地方~~在我们的主导下,配合完成了这套案例。让简单得不能再简单的装修,也变得美丽~~

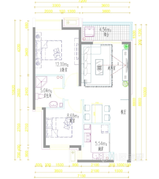
户型图

运用磨砂玻璃将厨房封闭起来,既保留了居家的隐蔽性,又为进门玄关和厨房增添了采光。
复古的精致雕花,展现优雅、细腻的风情。
布艺沙发搭配浅灰色的靠垫,既有耐脏的效果又不会让居室觉得过于沉闷。
一组简约的电视柜,为客厅留出了更多的空余空间,它有着不可小看的收纳功能,这可是打造美家的一个关键所在。
营造出的静谧感,让再烦躁的心灵都能沉寂下来,让人置身其中而忘了尘世喧嚣。
大大的窗户,把充足的光线和温暖的阳光聚集了起来,空气中弥漫着淡淡的清新味。
卧室的设计实用而舒适。一张大床配合靠包和各种简洁造型的家具,整体风格亲切柔和,让卧室显得温馨而极具幸福感。
线条和玻璃的结合让空间在有序中显得更加通透开阔。
白色厨柜,帮助厨房舍弃油腻的不良印象。
高亮材质的运用给人平静感觉之余,亦增加了空间的透光感。
在你踏入厨房的那一刻定会给心情减压。
山东省-德州市
设计经验5 作品3
  • 美式
  • 简约
  • 混搭
  • 硬装设计
  • 软装配饰设计

免费申请设计

设计师上门服务全程免费,禁止以任何形式收取费用。

请输入验证码

验证码输入错误