德国工业4.0智造

  • 健康环保
  • 免费服务
  • 三年质保
  • 本地体验
首页 > 案例中心 > 地中海 > 金色年华

金色年华 5162

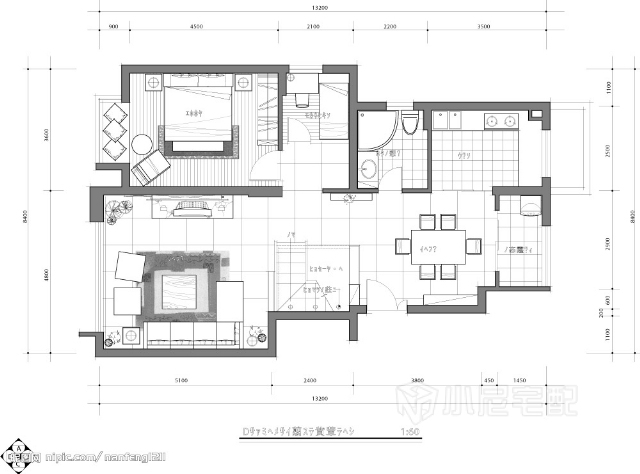
135㎡#三室一厅两卫#地中海

案例介绍
山西省 - 朔州市 - 平鲁区 南山一号

对于地中海来说,白色和蓝色是两个主打,最好还要有造型别致的拱廊和细细小小的石砾。在打造地中海风格的家居时,配色是一个主要的方面,要给人一种阳光而自然的感觉。主要的颜色来源是白色,蓝色,黄色,绿色以及土黄色和红褐色,这些都是来自于大自然最纯朴的元素。

户型图

绿意盎然
浑然一体
自然整洁
大方舒适
功能齐全
干净简洁






漂亮温馨
清新雅致
山西省-朔州市
设计经验4 作品3
  • 现代
  • 中式
  • 田园
  • 软装配饰设计

免费申请设计

设计师上门服务全程免费,禁止以任何形式收取费用。

请输入验证码

验证码输入错误